Landscape Design Services
Creating Outdoor Living, Designed for You
Your Pike Designed Landscape Awaits!
Make your outdoor space an extension of your home that reflects your lifestyle. Your local Pike landscape designer will help you balance visual appeal and functionality while leveraging their years of horticultural expertise. Your landscape design will blend seamlessly with your surroundings whether you seek a serene garden retreat, an inviting outdoor entertainment space, or a vibrant, nature-inspired sanctuary, we have the skills and passion to make it a reality. Rest assured, your Pike landscape designer will ensure you get the right plants, in the right conditions, all zoned by their water use.
You'll also receive a free landscape design rebate (value $599) with the purchase of $2,500 or more in plants and materials. Get started with your at home visit and book online today.
Get Started
Unlock that dream garden potential! Book Online or Call 855-444-7453.
What Our Customers Are Saying
Jennifer designed a very thoughtful landscape plan that suited our yard's conditions. We have a lot of shade and deer so the plants she chose were shade loving, native, when possible, and deer resistant.
Omar and his team from Eden Landscaping gave us a beautiful hardscape that exceeded our expectations and his customer service is above and beyond! It's been a positive experience and the results are lovely. Our thanks to everyone involved!
Kevin & Robin
I was contacted by a Pike representative promptly after purchasing the landscape design package. Our designer, Steve, was friendly, professional and provided us with a beautiful design in a timely manner. Highly recommend!
Anna L
Fantastic experience
We chose Pike Nurseries when we found ourselves visiting the nursery frequently and seeing the excellent selection. When we found out about the design service we decided that worked for us since we were great at buying plants but not having a real ability to style. We have has the pleasure to work with Chrissy - she is thorough, helpful and created a beautiful cohesive plan with a fence. During installation she was there to set it all up and walked us through before final installation. We love it and are very happy. We look forward to working with Chrissy on other projects.
Mike & Laura
We tried 2 other (smaller) landscape designers and they couldn't beat the price or professionalism of Pike. Brian, our design expert, was prompt, knowledgeable on the type of design we wanted (english garden) and was thorough on his visit. He measured the area, created some notes and sketches and went to work. He created the graphic design in under a week and it was impressive—he captured everything we thought we'd have planted. A+, highly recommend!
Shawanna R
I really liked Shapour and the knowledge and experience he shared with me during his on-sight visit. His verbal recommendations and feedback resonated with me time and time again. Looking forward to reviewing his draft and plans for our yard in order to move forward.
Rob S
We could not be happier with the garden installation that Pike Nursery's Susan Breen designed for us and the Jake Warren Landscape team installed. It is beautiful and more than we ever thought possible. Susan listened to what we thought we wanted but created a design that went far beyond what we imagined. And the landscapers did an amazing job not only with the plantings but also with paver installation. We definitely recommend Pike Nursery and Jake Warren Landscape. Thank you, Susan Breen, and Manny and the Landscape Team!
Sandra M
After taking down some dead/dying arborvitaes on our property boundary, we thought we could figure out how to landscape that space. Thankfully, we came to our senses and contracted with Pikes for a design and installation. After an onsite visit, Ginny designed a beautiful layout and supervised the installation. It looks SO much better than anything we could have done ourselves. We could not be more pleased with the level of service and the results!
Anna W
Ryan was very insightful with plans for my garden changes. He listened to my ideas, put forward his own and gave me reasons for using or not using specific plants in the proposed design. He was knowledgeable about all the plants and answered all of my questions. I am very happy with the design he came up with and very much looking forward to the installation.
Arlene M
I worked with Pikes Nursery in Peachtree City. Kim Christensen was very easy to work with. The install team was very professional and worked with me in the placement of the plants. Very pleased with the job and the pants.
Lori
Our design expert will plan your garden paradise
Let Us Do The Work
- Our installers are professional, licensed, and insured.
- We offer an installation guarantee.
- We offer proven performance - our Certified Installers have installed thousands of landscapes.
Let Us Customize Our Program To Fit Your Needs
Book Online or by calling us at 855-444-7453
Meet Your Local Landscape Designer
April designs a variety of garden styles and takes pride in
really listening to her clients and striving to produce a design that reflects
their lifestyle and desires for the space. Contemporary, Traditional Southern,
Xeriscape, English garden, etc. "It's all about what they want!" April holds a
degree in Biology and Horticulture Technology and has over 10 years of
experience in the green industry.
Communities served: Uptown, Myers Park, Highland Creek
& University
LANDSCAPE DESIGN
BEFORE
AFTER
BEFORE
AFTER
BEFORE
BEFORE
AFTER
AFTER
LANDSCAPE DESIGN
BEFORE
BEFORE
AFTER
AFTER
BEFORE
BEFORE
AFTER
AFTER
Meet Your Local Landscape Designer
Stephen enjoys creating spaces that are eco conscious to
Georgia's native soils. "My goal is to
honor my customers' wishes while also embracing the needs of the natural
landscape, fostering a symbiotic relationship between the two that results in a
successful design." Stephen was raised
in Georgia and has great appreciation for true southern gardens. Prior to
becoming a landscape designer, he spent 20 years as a chef in the food industry.
This experience is often reflected in his designs, which regularly feature
native edible plants and regenerative landscapes. Stephen holds a certificate in landscape
design from Emory University and has worked in the landscape industry for three
years.
Communities served: Decatur, Peachtree Hills, Buckhead
& Brookhaven
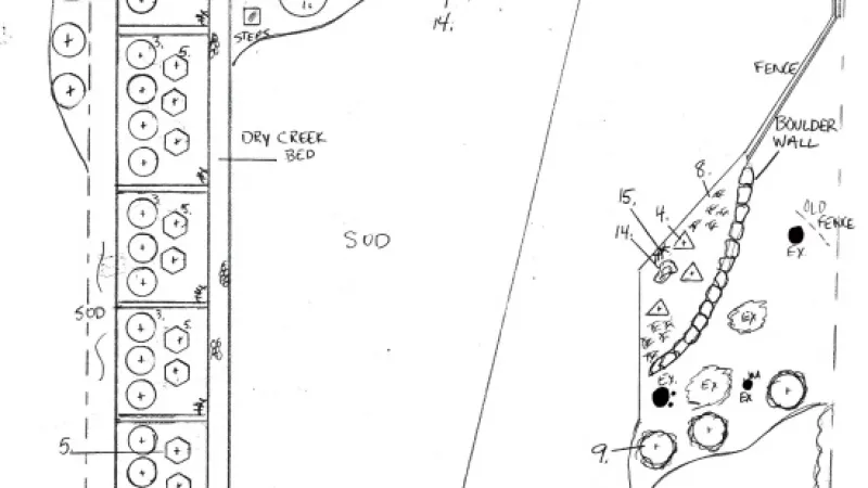
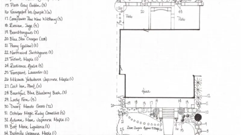
Design Diagram and Plant List
Completed Installation
BEFORE
AFTER
Meet Your Local Landscape Designer
Cortney earned her Landscape Design Certification through
Emory University and is a Georgia Certified Plant Professional. Her expertise
includes building certified wildlife and pollinator habitats, of which she
volunteers with local schools to establish habitats on Forsyth County school
grounds. Her goal is to ensure each client receives the garden that they will
feel welcome coming home to, regardless of if it is in the style of English
Cottage, Zen, Southern, or Contemporary.
Communities served: Cumming, Milton
Design Diagram and Plant List
2 years after Installation
Hillside - Before
Completed Installation 2023
Hillside - Before
Completed Installation 2023
Completed Installation 2023
2 years After Installation
Design Diagram and Plant List
Completed Installation
BEFORE
Completed Installation
BEFORE
AFTER
Design Diagram and Plant List
AFTER
BEFORE
AFTER
BEFORE
AFTER
AFTER
AFTER
Meet Your Local Landscape Designer
I enjoy creating specialty botanical gardens such as rose
gardens, small orchards and cutting gardens. I also enjoy combining plants with
architectural characteristic into the landscapes to enhance surrounding
structures. Bringing a homeowner's landscaping vision to life is exciting and
rewarding. As a Certified Plant Professional through the Georgia Industry Association
and a Landscape Horticulturist, placing the right plants in the right
environments is crucial to creating a low maintenance, high performance
landscape design.
Communities served: West Cobb, Hiram, Dallas & Smyrna
LANDSCAPE DESIGN
BEFORE
BEFORE
AFTER
AFTER
AFTER
diagram
BEFORE
AFTER
BEFORE
AFTER
BEFORE
DURING
AFTER
Meet Your Local Landscape Designer
I have been working with Pike
Nursery for many years and love serving our customers. When working with design clients, my focus is
to listen and align the design with their likes, needs, and solutions. I like to set my clients up for success and to
share the joy of gardening—whether it's because they like to Play in the Dirt or
if they just want to be "Wowed!" with plants. I love to use plants that change with the
seasons and surprise you. I hold
degrees from SUNY Farmingdale and SUNY ESF. I am NC Plant Certified, have held positions
in Nursery Sales-greenhouse, wholesale, and perennial propagation and former
business owner.
Communities Served: Matthews, Ballantyne
Design Diagram and Plant List
Design Diagram and Plant List
Before
Before
After
After
Design Diagram and Plant List
After
Before
After
Design Diagram and Plant List
After
Before
After
Before
After
Meet Your Local Landscape Designer
Shapour is a Georgia native who knows plants and soil inside
and out. His passion for creating enjoyable outdoor living spaces, and an
unwavering commitment to achieving the client's specific goals, results in
successful design solutions. "My design philosophy aims to unite form and
function, to create a little piece of 'Heaven' on Earth." Shapour holds degrees
in biology, philosophy, and horticulture and is Georgia Certified Plant
Professional. Shapour has worked in the landscape industry for over 15 years.
Communities served: Marietta, East Cobb, West Cobb,
Smyrna and Vinings
LANDSCAPE DESIGN
LANDSCAPE DESIGN
diagram
Meet Your Local Landscape Designer
Brian enjoys natural designs. "I am drawn towards large
swaths of plantings that ebb and flow within the landscape." But he's versed in
many landscape types and takes a client-first approach, melding their goals for
the space with his expertise to create custom landscapes. Brian holds a degree
in Landscape Architecture and is a state-registered Landscape Architect with
over 20 years of experience.
Communities served: Dunwoody, Roswell, Milton,
Alpharetta, Sandy Springs & Johns Creek
LANDSCAPE DESIGN
LANDSCAPE DESIGN
BEFORE
BEFORE
BEFORE
BEFORE
AFTER
AFTER
AFTER
AFTER
Meet Your Local Landscape Designer
Jennifer approaches designs with creativity and
sustainability in mind. She enjoys creating natural and wildlife-friendly
landscapes as well as botanical gardens with lots of plant interest. "I love
designing beautiful gardens and educating people so they can better enjoy their
outdoor spaces. "Jennifer holds a degree in biology and has worked with Pike's since 2015.
Communities served: Acworth, Towne Lake, West Cobb,
Marietta, Woodstock & Milton
LANDSCAPE DESIGN
BEFORE
BEFORE
BEFORE
BEFORE
AFTER
AFTER
AFTER
AFTER
Meet Your Local Landscape Designer
Kim enjoys designing landscapes that have both beauty and
function. "I believe that a landscape should be useful as well as beautiful.
You need to be able move through your yard, whether that be entertaining on a
new patio or wandering a flagstone path through a butterfly garden" She enjoys
working with the homeowner's incorporation their vision along with her recommendations
for their gardens, Kim has over 20 years' experience in the green industry.
Communities served: Peachtree City, Senoia, Fayetteville
& Newnan
LANDSCAPE DESIGN
BEFORE
AFTER
LANDSCAPE DESIGN
BEFORE
AFTER
Design
Before
After
Meet Your Local Landscape Designer
Ginny loves to create designs that match clients' lifestyle and personalities. She also likes to provide opportunities to support wildlife with the use of native plants. She believes that your garden or landscape should make you smile. Ginny holds a Master's degree in Landscape Architecture and has many years of experience designing for a variety of customers and their needs.
Communities served: Matthews, Mint Hill, Indian Land,
& Weddington
LANDSCAPE DESIGN
BEFORE
BEFORE
BEFORE
AFTER
AFTER
AFTER
Meet Your Local Landscape Designer
Bruce has an eclectic style and enjoys creating all types of
designs from zen gardens and tropical pools to low-maintenance, sustainable
gardens and classical spaces with boxwood borders. He especially enjoys trying
to bold designs with unique plants; his style would work well with adventurous
clients. "The best part of the job is when your clients' expectations are
greatly exceeded." Bruce holds a degree in Landscape Architecture and is a
state-registered Landscape Architect with over 34 years of experience.
Communities served: Brookhaven, Johns Creek, Alpharetta,
Roswell, Sandy Springs & Dunwoody
LANDSCAPE DESIGN
BEFORE
AFTER
AFTER
AFTER
AFTER
AFTER
AFTER
LANDSCAPE DESIGN
BEFORE
AFTER
AFTER
AFTER
Meet Your Local Landscape Designer
After spending a decade on the west coast in
production design, I returned to NC to plant a tree in memory of my
grandfather. Looking over the numerous colors, textures, and forms that were
available it became apparent that this was an exciting world of design I hadn't
considered before. Over the course of the next 7 years my single tree was
joined by over 150 other conifers, Japanese maples, specimen trees, grasses,
and native perennials and a small landscape design and consulting company. I am
excited to bring the knowledge I've gained over the last 10 years of
garden/arboretum experience, as well as the decades of design experience to
help homeowners create magical oases that thrive in our area.
Communities Served: Lake Norman, Highland Creek
LANDSCAPE DESIGN
LANDSCAPE DESIGN
LANDSCAPE DESIGN
Meet Your Local Landscape Designer
Kristine really enjoys creating perennials gardens (sun or
shade) as well as pollinator gardens. She also likes the challenge of bringing
a neglected landscape back to its full glory. "I love sharing my knowledge with
my customers. Helping a beginner gardener get comfortable with plants can
change their entire outlook on what they once thought of as intimidating."
Kristine is a certified plant professional through the Georgia Green Industry
Association.
Communities served: Toco Hills, Peachtree Hills, Decatur
& Buckhead
LANDSCAPE DESIGN
BEFORE
AFTER
AFTER
LANDSCAPE DESIGN
BEFORE
BEFORE
AFTER
Meet Your Local Landscape Designer
Ryan's designs marry function and aesthetics to create a
landscape his clients will love for years to come. He uses color, contrasting
foliage and high-interest areas to "instill a feeling of brightness" in the
landscape. Ryan holds a degree in fine arts and a certificate in residential
landscape design.
Communities served: East Cobb, West Cobb, Marietta,
Smyrna & Vinings
LANDSCAPE DESIGN
BEFORE
BEFORE
AFTER
AFTER
1 year after installation
1 year after installation
1 year after installation
Design Diagram
Before
Before
After
After
After
FAQ's
Does the Pike Nurseries landscape design service cover both my front yard and back yard?
Our landscape design service is tailored to focus on one specific area of your yard (either front or back). However, we understand the value of a cohesive outdoor space and can extend the design to a smaller section of the second area. For additional time required, you may purchase more design hours at a rate of $90 per hour. This ensures your designer has ample time to craft a landscape design that fits your vision across both areas if desired.
Can my landscape design include hardscapes like irrigation, pavers, lighting, and other elements?
Our Pike landscape design service emphasizes planting design, but our expert designers can incorporate simple hardscape layouts. They can outline areas for hardscape features on your hand-drawn plan, though specifics on materials and construction are not included. While irrigation and lighting are not in the design plan, our licensed contractors can collaborate with you on these elements, ensuring a cohesive final look.
How do I schedule a Pike landscape design appointment?
Scheduling a landscape design appointment with Pike Nurseries is simple. First, purchase our Landscape Design Service online or in-store, and our team will reach out within 48-72 hours to schedule an at-home appointment. For any questions or additional guidance, you can contact our customer service team at 855-444-7453.
Can Pike Nurseries provide a landscape design if I live outside a 15-mile radius from a store?
Yes, our designers typically work within a 15-mile radius of each Pike location, but we may be able to accommodate areas farther away for an additional fee. This fee covers the designer's extra travel time and mileage at a minimum of $90 per hour, and it must be paid in advance. Contact our customer service team with your location details, and we'll confirm if we can provide design services in your area and discuss any additional charges.
How long do I have to use the Landscape Design Rebate after purchasing the design?
Once you start ordering plants for your landscape project, you'll have three months to purchase the minimum $2,500 in plants and materials needed to redeem the landscape design rebate. This rebate offers a $599 credit on your purchase, making it easier to bring your landscape design vision to life with high-quality plants from Pike Nurseries.
When can I expect to receive my landscape design from Pike?
Following your initial consultation with one of our designers, you can expect your custom landscape design to be completed within 3 to 4 weeks. This timeframe allows us to craft a detailed and personalized design that aligns with your specific preferences and the unique conditions of your garden.
What makes the Pike landscape design service unique?
At Pike Nurseries, our designers are local experts with years of horticultural knowledge tailored to the east coast climate. Our landscape design service is focused on blending visual appeal with functionality, helping you create a custom outdoor space that matches your lifestyle. Plus, with our commitment to plant quality, guaranteed trees and shrubs, and options for a free landscape design rebate, Pike offers a comprehensive, high-value experience for transforming your yard.
What’s included in the Pike landscape design service?
Our landscape design service includes four hours with a local designer, covering a single yard area. During your at-home appointment, the designer will discuss your vision, assess your existing garden conditions, and create a hand-drawn landscape design diagram, complete with a plant list and product estimate. Additional hours and customized services are available as needed.
Does Pike offer a guarantee on plants and landscape installation?
Yes, Pike offers a FREE Lifetime Guarantee on trees and shrubs purchased at our garden centers. If you choose our installation service, we also provide a one-year installation guarantee on your trees and shrubs. This reflects our commitment to quality and customer satisfaction, ensuring that your landscape investment remains beautiful and healthy.
Does Pike Nurseries offer financing options for landscape design and plant purchases?
Yes, Pike Nurseries offers a convenient 12-month no-interest financing option through Wells Fargo Outdoor Solutions. This financing plan makes it easier to bring your landscape vision to life without upfront financial strain, as long as the balance is paid in full within 12 months. You can apply this financing option to cover landscape design services and plant purchases, helping you create the outdoor space of your dreams. For more details, visit our financing page.
Can I earn rewards points on my purchases at Pike Nurseries?
Yes, with the Play in the Dirt Program, you can earn points on eligible purchases of plants and materials, making it easy to save on future gardening needs. When you purchase your landscape design service online or in-store, we'll sign you up for the program, so you start earning points right away. Points are accumulated on purchases of plants and garden supplies, though labor costs, such as installation and service charges, are excluded. For more details on the Play in the Dirt program, visit our website or ask a team member at your local Pike Nurseries.